这是一套89㎡的三居室装修案例,为了营造出更开阔的空间感,业主可谓是用心良苦,其中的设计思路对于小户型装修有着极高的借鉴意义。
亮点:室内所有房间均采用移门设计,构建出全通透的结构布局,使得动线流畅自如,原本局促的蜗居空间仿佛摇身一变,成了一个宽敞的大开间!

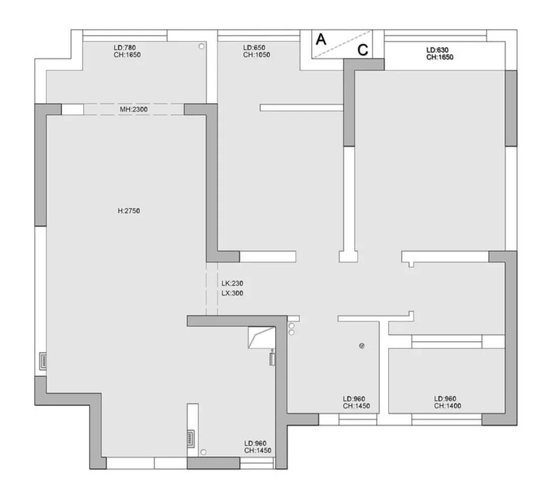
房屋面积为89㎡,户型属于常规的三室两厅。该户型存在的主要问题是采光不足,空间略显压抑。

根据业主的实际需求,空间进行了如下改造:
1、拆除原厨房墙体,精心打造玄关柜,并采用移门作为空间隔断;
2、打通主卧和书房,分别配备移门,形成套间功能区域;
3、次卧拆除多余的墙体,整体进行抬高处理,将其作为休闲室使用;
4、所有房间的移门都采用墙体内夹结构,既能完全打开,又不会占用额外空间。
玄关

入户鞋柜采用悬挂镂空结构进行设计,不仅增强了实用性,还有效地弱化了柜体的厚重感。在鞋柜底部嵌入灯带,营造出一种温馨的回家仪式感。
厨房

厨房以白色为主色调,采光十分充足,功能性也很强。巧妙设计的移门,使门洞能够完全打开,极大地增加了空间的通透感。
餐厅

餐厅中,木饰面的餐桌与木地板相互呼应,再搭配白墙设计,整个空间呈现出温润的质感。餐边柜兼具收纳与展示两种功能,简单而实用。
客厅

将阳台纳入客厅后,视野更加开阔。采用无主灯设计,搭配大量带有木元素的家具,使客厅空间简约干净,让人感受到回归生活本质的美好。

悬挂式电视柜质感轻盈,方便收纳客厅中的小物件。舍弃电视机,用简单的装饰画搭配绿植进行点缀,让客厅空间显得休闲慵懒。
卫生间

卫生间实现干湿分离,圆形镜面和开窗设计,增加了空间的通透性和精致感。

悬挂式的马桶上方设置了毛巾加热器,旁边设计壁龛,隔断移门内嵌墙体,尽管空间较小,但实用性却很强。

独立淋浴间设计独特,墙面贴满白色的小方砖,在文艺的氛围中凸显出干净整洁的感觉。
书房

主卧与书房合并,中间使用移门进行隔断,套间设计使功能性更强。简单的书桌设计,既能满足办公需求,又能作为娱乐场所。

左边是一组悬挂式储物柜,替代了衣帽间的功能。底部L型的飘窗柜设计,给人一种休闲惬意的感觉。
主卧室

主卧空间设计简洁大方,灰色的床品搭配卡其色窗帘,再加上木地板的衬托,整体色彩协调统一,空间简约而又温暖。
客房

客房暂时作为休闲室使用,采用整体抬高的设计,规划了大量的收纳空间。平时既可以待客,又可以独自在这里冥想放松,简单实用。
结语:
全屋采用移门设计,在充分保证私密性的基础上,大大增强了空间的通透性,这无疑是让小户型空间显大的一个重要技巧。